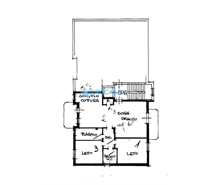
2 Camere 2 Bagni 1 Box/Posti auto 132 m2
Video
Virtual Tour
Caratteristiche principali
Codice
V0518
Prezzo
248.000 EUR
Classe
E
Locali
3
Mq abitabili
110
Mq Box
31
Mq Balcone
12
Anno costruzione
1980
Anno ristrutturazione
2014
Altre caratteristiche e accessori
Stato Immobile
Ottimo
Grado
Signorile
Posizione
Centro
Panorama
Vista Aperta
Piano
Quinto
Orientamento
Nord Ovest Sud
Totale Piani
Cinque
Lati Liberi
3
Giardino
Comune
Arredi
Solo Cucina
Tipo Soggiorno
Soggiorno
Tipo Cucina
A Vista
Riscaldamento
Conta Calorie
Tipo Riscaldam.
Caldaia
Tipo Impianto
Radiatori
Fonte Energetica
Metano
Acqua Calda
Autonoma
Raffrescamento
Split
Pavim. Giorno
Parquet
Pavim. Notte
Parquet
Pavim. Cucina
Parquet
Pavim. Bagno
Ceramica
Accesso Disabili
Nessuna Barriera
Accesso interno disabili
Pieno accesso
Cookie preference