2 Bagni 1 Box/Posti auto 106 m2
Video
Virtual Tour
Caratteristiche principali
Codice
N2009
Prezzo
135.000 EUR
Spese condominiali
550 EUR
Classe
C (69,38)
Locali
4
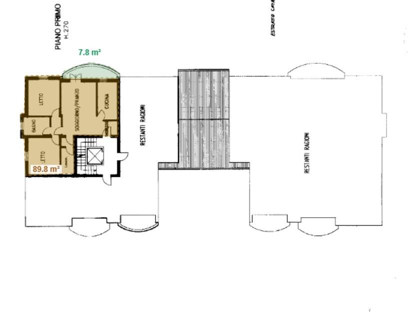
Mq abitabili
80
Mq Box
23
Mq Balcone
7,8
Anno costruzione
1999
Anno ristrutturazione
2024
Altre caratteristiche e accessori
Stato Immobile
Ristrutturato
Grado
Medio
Posizione
Centro
Panorama
Vista Giardino
Piano
Primo
Orientamento
Sud Ovest
Totale Piani
Tre
Lati Liberi
2
Giardino
Comune
Arredi
Arredato
Tipo Soggiorno
Soggiorno
Tipo Cucina
Abitabile
Riscaldamento
Autonomo
Tipo Riscaldam.
Caldaia
Tipo Impianto
Radiatori
Fonte Energetica
Gas
Acqua Calda
Autonoma
Raffrescamento
Split
Infissi
PVC Triplo Vetro
Serramenti
Nuovo
Persiana
Persiana PVC
Pavim. Giorno
Ceramica
Pavim. Notte
Ceramica
Pavim. Cucina
Ceramica
Pavim. Bagno
Ceramica
Accesso Disabili
Nessuna Barriera
Accessori
Aria Condizionata, Ascensore, Cancello Elettrico, Doppi Vetri, Impianto Fotovoltaico, Lavanderia, Pannelli Solari, Parco Condominiale, Porta Blindata, Rete Dati, Ripostiglio, Video Citofono, Zanzariere
ROLO PROPONIAMO IN ESCLUSIVA APPARTAMENTO IN PALAZZINA TRANQUILLA E BEN ABITATA E LIBERO DA SUBITO!
L'appartamento ha appena subito una ristrutturazione del 110% che ha visto installare cappotto, rifacimento del tetto, facciata, sostituzione infissi in PVC, sostituzione porta blindata, finestre in triplo vetro installazione di pannelli fotovoltaici per le parti comuni e caldaia nuova. L'immobile si trova al primo piano servito da ascensore e si sviluppa con ingresso su salotto dalle ampie metrature, cucina abitabile ed un grazioso balcone loggiato che affaccia su di un parco, disimpegno, ripostiglio e bagno ad uso lavanderia. Nella zona notte troviamo due camere matrimoniali ed un bagno. Al piano terra autorimessa di 25 mq e cantina assegnata ma non di proprietà. La palazzina vicinissima al centro è circondata da un cortile privato e molto curato adiacente ad un parco comunale e alle scuole elementari e medie del paese. CLIMATIZZATO CON DOPPIO SPLIT! LIBERO DA SUBITO! POSSIBILITA' DI ARREDO! Rich. € 135.000,00 Rif. N1967 Cl. energ. C kWh/m2 69,38 Eurocasaimm Agenzie Immobiliari Novi - Via Ligabue n. 37, Tel.: 059.67 75 39 - novi@eurocasaimm.com - www.eurocasaimm.com
Via Borsellino 9, Rolo (RE)
Cookie preference