3 Camere 2 Bagni 2 Box/Posti auto 165 m2
Virtual Tour
Caratteristiche principali
Codice
R1318
Prezzo
168.000 EUR
Classe
F (222,23 [kWh/m²a])
Locali
6
Mq abitabili
120
Mq Box
16
Mq Giardino
100
Mq Balcone
4,5
Anno costruzione
2004
Altre caratteristiche e accessori
Stato Immobile
Buono
Grado
Medio
Posizione
Periferia
Panorama
Vista Giardino
Piano
Piano Terra
Orientamento
Nord Est
Lati Liberi
2
Giardino
Privato
Arredi
Possibilità
Tipo Soggiorno
Soggiorno
Tipo Cucina
Abitabile
Riscaldamento
Autonomo
Tipo Riscaldam.
Caldaia
Tipo Impianto
Radiatori
Fonte Energetica
Metano
Acqua Calda
Autonoma
Raffrescamento
Split
Infissi
Legno Doppio Vetro
Serramenti
Buono
Persiana
Persiana Legno
Pavim. Giorno
Ceramica
Pavim. Notte
Ceramica
Pavim. Cucina
Ceramica
Pavim. Bagno
Ceramica
Accessori
Aria Condizionata, Camino, Cancello Elettrico, Doppi Vetri, Lavanderia, Passaggio Pedonale, Porta Blindata, Rete Dati, Ripostiglio, Stufa a Pellet, Zanzariere
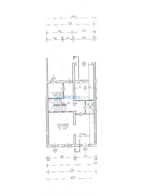
GONZAGA, FRAZ. BONDENO – PROPONIAMO IN ESCLUSIVA villetta a schiera centrale con accesso privato al parco comunale. Situata in una zona tranquilla e completamente residenziale, la villetta si sviluppa su due livelli ed è così composta: al piano terra ingresso su soggiorno con stufa a pellet o legna, cucina a vista con zona pranzo, disimpegno, bagno, ripostiglio e garage collegato internamente all’abitazione, con secondo accesso diretto all’area cortiliva esterna. Al piano superiore si trovano tre camere da letto matrimoniali, un bagno ampio e luminoso e un ulteriore ripostiglio. La proprietà dispone di due aree cortilive private, una sul fronte e una sul retro, e si affaccia direttamente su un bellissimo parco comunale, al quale si accede tramite ingresso privato. Soluzione ideale per chi cerca tranquillità, spazio e contatto con il verde. Rich. € 168.000 Rif. R1318 - Eurocasaimm Agenzie Immobiliari Rolo - Corso Repubblica n. 45, tel. ufficio 059/645023 - rolo@eurocasaimm.com - www.eurocasaimm.com
Via Padania 22, Gonzaga (MN)
Cookie preference