2 Camere 2 Bagni 1 Box/Posti auto 131 m2
Video
Virtual Tour
Caratteristiche principali
Codice
V0456
Prezzo
209.000 EUR (-5%)
198.000 EUR
Spese condominiali
1.600 EUR
Classe
D
Locali
4
Mq abitabili
110,5
Mq Box
18,5
Anno costruzione
1990
Altre caratteristiche e accessori
Stato Immobile
Buono
Grado
Signorile
Posizione
Periferia
Panorama
Vista Aperta
Piano
Primo
Orientamento
Est Sud Ovest
Totale Piani
Tre
Lati Liberi
3
Giardino
No
Arredi
Non Arredato
Tipo Soggiorno
Doppio
Tipo Cucina
Semi Abitabile
Riscaldamento
Autonomo
Tipo Riscaldam.
Caldaia
Tipo Impianto
Radiatori
Fonte Energetica
Metano
Acqua Calda
Centralizzata
Raffrescamento
No
Infissi
Metallo Doppio Vetro
Serramenti
Buono
Persiana
Persiana PVC
Pavim. Giorno
Ceramica
Pavim. Notte
Parquet
Pavim. Cucina
Ceramica
Pavim. Bagno
Ceramica
Cantina - Solaio
Cantina
Accessori
Ascensore, Doppi Vetri, Lavanderia, Parco Condominiale, Passaggio Automobilistico, Passaggio Pedonale, Porta Blindata, Ripostiglio, Tavolini Esterni, Video Citofono
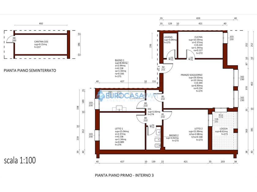
CARPI SUD, ZONA MORBIDINA, SPAZIOSO APPARTAMENTO CON LOGGIA in classe D!!! Benvenuti nel cuore pulsante della zona sud di Carpi, una delle aree più richieste e amate della città, perfetta per chi cerca comodità, servizi e qualità della vita. Questo appartamento, disponibile in esclusiva, rappresenta un'opportunità unica per chi desidera una casa spaziosa e funzionale in una posizione strategica. Situato al primo piano di un contesto condominiale curato e servito da ascensore, l’immobile è composto da ingresso su grande soggiorno luminoso, reso ancora più accogliente dalla presenza di una splendida loggia, ideale per trascorrere piacevoli momenti all’aperto. La cucina separata offre un ambiente comodo e ben organizzato, con la possibilità di trasformarla in un moderno open space per chi ama spazi versatili e contemporanei. Una comoda dispensa completa la zona giorno, perfetta per conservare alimenti, mantenere la cucina ordinata o utilizzarla come ripostiglio o pratica scarpiera. La zona notte, separata da un funzionale disimpegno, ospita DUE AMPIE CAMERE, UNA DA 15 MQ E UNA DA 16 MQ, oltre a DUE BAGNI che assicurano praticità e comodità per tutta la famiglia. Al piano interrato, sempre raggiungibile con l’ascensore, si trovano un garage spazioso di oltre 18 mq e una cantina di 10 mq, entrambi di proprietà, ideali per completare l’offerta di spazi a disposizione. La posizione dell’appartamento è un ulteriore punto di forza, situata in una zona ideale per chi desidera avere tutto a portata di mano: scuole, negozi e servizi sono facilmente raggiungibili, rendendo questa soluzione abitativa perfetta per famiglie e per chi cerca praticità senza rinunciare alla tranquillità. Non lasciarti sfuggire questa occasione unica. Le selezioni per il primo gruppo di visite sono già aperte, quindi contattaci subito per fissare un appuntamento in ufficio e prenotare la tua visita. Rich. € 198.000 Rif. V0456 - Eurocasaimm Agenzie Immobiliari Carpi - Via Etna n. 12-14, tel. 059/645023 - carpidue@eurocasaimm.com - www.eurocasaimm.com
Via Ugo La Malfa 3, Carpi (MO)
Cookie preference