1 Camere 1 Bagni 1 Box/Posti auto 68,4 m2
Video
Caratteristiche principali
Codice
V0458
Prezzo
115.000 EUR
Spese condominiali
1.000 EUR
Classe
E (195,24)
Locali
2
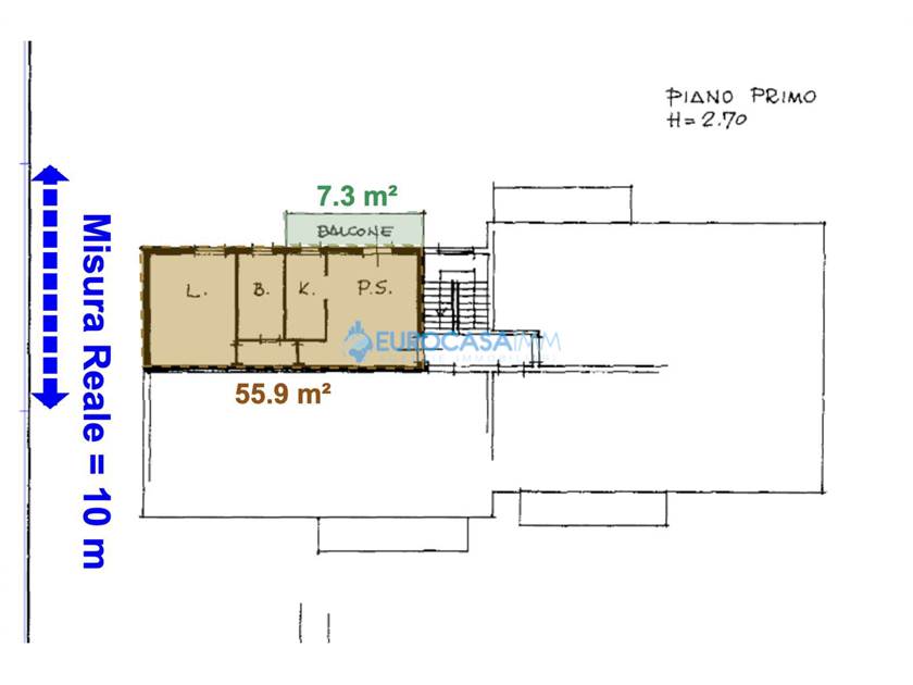
Mq abitabili
55,9
Mq Box
17,7
Mq Balcone
7,3
Anno costruzione
1992
Altre caratteristiche e accessori
Stato Immobile
Buono
Panorama
Vista Aperta
Piano
Primo
Orientamento
Ovest
Totale Piani
Due
Lati Liberi
2
Giardino
Comune
Arredi
Solo Cucina
Tipo Soggiorno
Soggiorno
Tipo Cucina
Cucinotto
Riscaldamento
Autonomo
Tipo Riscaldam.
Caldaia
Tipo Impianto
Radiatori
Fonte Energetica
Metano
Acqua Calda
Autonoma
Raffrescamento
Split
Accessori
Aria Condizionata, Doppi Vetri, Porta Blindata
CARPI ADIACENTE AL CENTRO, GRAZIOSO APPARTAMENTO posto al primo piano di due, in palazzina curata con esterno in faccia vista, composto da ingresso su soggiorno con balcone, cucinotto finestrato, disimpegno notte, camera matrimoniale, bagno con doccia e vasca, garage al piano terra. Utenze autonome, buone condizioni! Rich. € 115.000 Rif. V0458 - Eurocasaimm Agenzie Immobiliari Carpi, Via Etna n. 12-14, tel. 059/645023 - carpi@eurocasaimm.com - www.eurocasaimm.com
via Amendola 62, Carpi (MO)
Cookie preference