4 Camere 2 Bagni 2 Box/Posti auto 258 m2
Video
Caratteristiche principali
Codice
V0578
Prezzo
310.000 EUR
Classe
VA
Locali
9
Mq abitabili
193
Mq solaio
64
Mq Box
31
Mq Giardino
340
Mq Balcone
5
Altre caratteristiche e accessori
Stato Immobile
Discrete Condizioni
Piano
Piano Terra
Orientamento
Nord Ovest Sud Est
Lati Liberi
4
Giardino
Privato
Riscaldamento
Autonomo
Tipo Riscaldam.
Caldaia
Tipo Impianto
Radiatori
Fonte Energetica
Metano
Acqua Calda
Autonoma
Cantina - Solaio
Solaio
Accessori
Aria Condizionata, Doppi Vetri
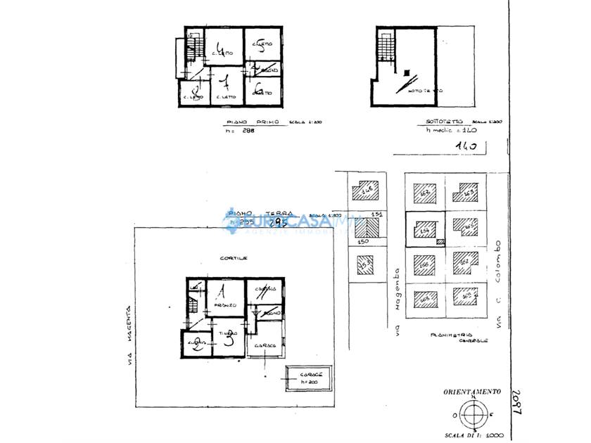
CARPI SUD, CASA SINGOLA CON GIARDINO SU 4 LATI! In zona residenziale tranquilla e comoda al centro, alle scuole ed a tutti i servizi, proponiamo in vendita una soluzione abitativa ideale come casa monofamiliare ma anche come bifamiliare, composta al piano terra da ingresso, soggiorno, tinello, cucina, camera, bagno ed autorimessa, al piano primo da disimpegno, 4 camere da letto matrimoniale, camera 3/4 attualmente usata come cucina, bagno, balcone, al secondo piano da soffitta non abitabile collegata da scala in muratura. Altra autorimessa in corpo staccato. La casa si presenta in condizioni abitabili. Rich. € 310.000 Rif. V0578 - Eurocasaimm Agenzie Immobiliari Carpi, via Etna n. 12-14, Tel. 059/645023 - carpi@eurocasaimm.com - www.eurocasaimm.com
Cookie preference